N01052 | Skvěle řešený byt 2+1 57m2 s velkou lodžií a krásný výhledem, Praha 4 - Podolí (Zelený pruh) G

Kubištova, 14000, Praha 4, Praha
19 000 Kč (za měsíc)
+ služby včetně topení 5.000 Kč pro 2 osoby + el v bytě cca 1.500 Kč, kauce 40.000 Kč, provize 19.000 Kč

K dlouhodobému pronájmu nabízíme prostorný slunný byt 2+1, 57m2 s velkou lodžií a krásným výhledem, v 7.patře s výtahem 10-ti patrového cihlového domu na Praze 4 Podolí, kousek od metra Budějovická.

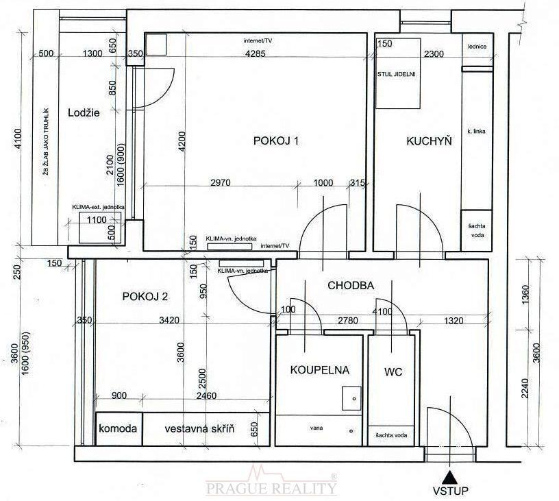
Byt je světlý, slunný, s klimatizací. Má předsíň, ze které jsou samostatné vstupy do všech místností. Obývací pokoj s velkou lodžií, kde jsou umístěny truhlíky s možností pěstování kytiček, bylinek či i zeleniny, dále ložnici, samostatnou kuchyni, koupelnu s vanou a oddělené WC.

Byt je částečně zařízený. V kuchyni jsou veškeré spotřebiče (lednička, myčka, elektrický sporák s troubou), v koupelně je pračka, v předsíni úložná skříň, v ložnici vestavěná šatní skříň s komodou, v obývacím pokoji zůstává TV stolek. V ložnici i v obývacím pokoji je klimatizace. Topení a ohřev vody je centrální dálkové, tudíž není nutné se o nic starat.

Byt je umístěn v oblíbené lokalitě zvané Zelený pruh. Velmi příjemné místo v zeleni, přitom 5 minut chůze od domu se nachází zastávka mnoha autobusů na metro Budějovická, Pankrác, Pražského povstání, případně do Braníka nebo na nábřeží k Podolské vodárně.

K nastěhování od 1.4.2026.
Nájemné 19.000 Kč + záloha na služby včetně topení pro 2 osoby 5.000 Kč + vlastní platba elektřiny v bytě cca 1.500 Kč měsíčně. Kauce 40.000 Kč, provize 19.000 Kč.

  • Dispozice bytu:2+1
  • Podlaží v domě:8
  • Počet podlaží v domě:11
  • Celková podlahová plocha:63 m2
  • Druh objektu:cihlová
  • Stav objektu:po rekonstrukci
  • Vlastnictví:osobní
  • Lodžie:6 m2
  • Energetická náročnost budovy:G - Mimořádně nehospodárná
  • Energetický ukazatel
    podle vyhlášky:
    č. 264/2020 Sb.


Prodávající makléř

Kateřina Zelingrová

Kontaktní formulář